A leading UK supplier of Cable Handling, Height Safety, Hoisting, Materials Handling, Mechanical Handling, Pulling, Securing & Winching Equipment - Established in 2014 with over 20,000 customers served

Need More?
Require more stock than shown as available, please send us your requirements via email sales@rigginguk.co.uk
Need Help?
If you're unable to locate the specific item you're searching for, please send us your requirements via email sales@rigginguk.co.uk
Description
Description
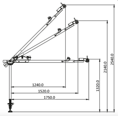
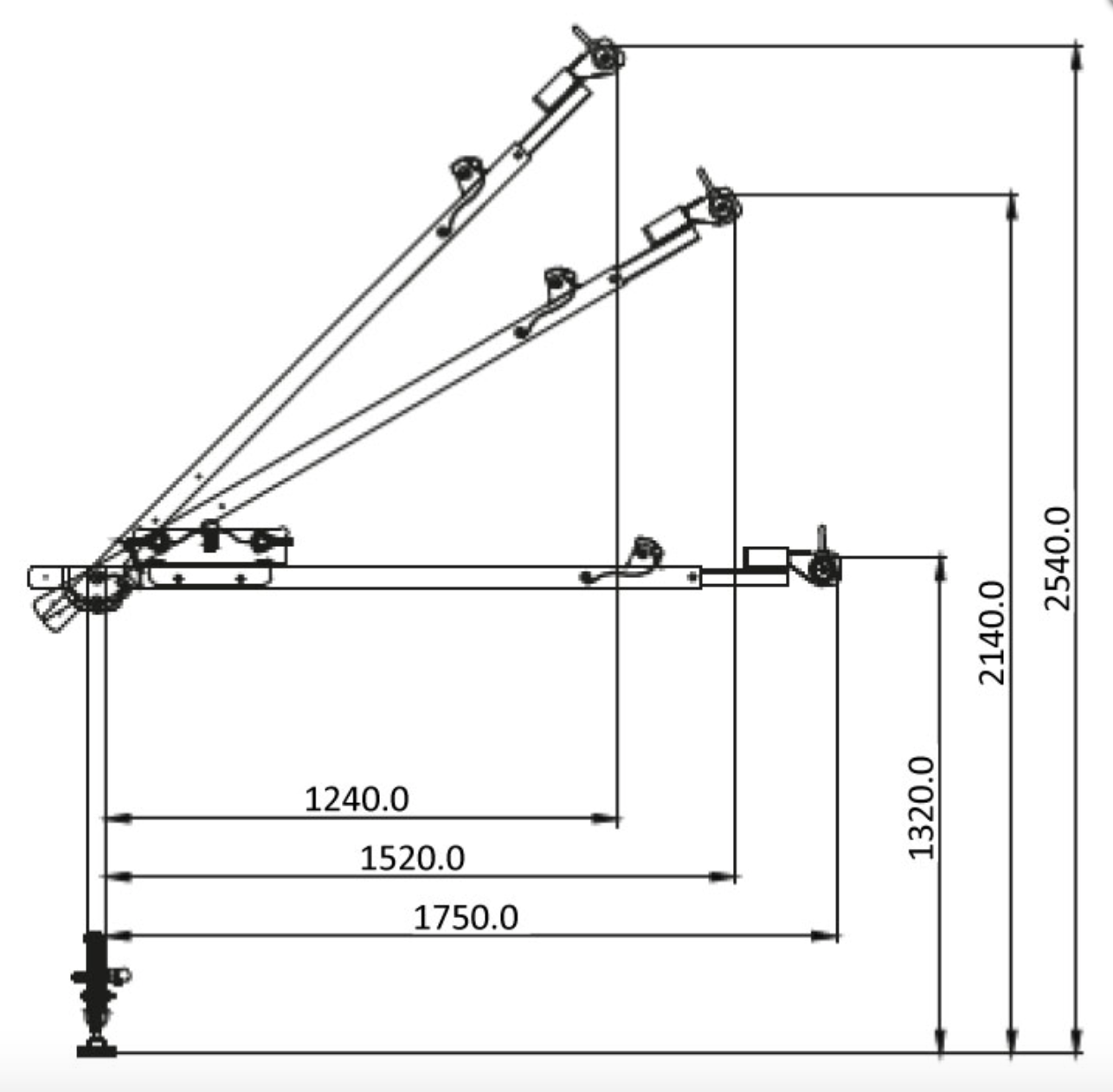
Easy Safeway Extendable Davit Arm

- 1 person use only.
- Complete with extendable arm.
- Arm Length: 1.75 mtr to 2.53 mtr.
- Base: 1 mtr.
- Max Load Capacity: 500 KG.
- Resistance: 12 kN.
- Minimum Breaking Strength: 15 kN.
- Conformity: BS EN 795 Type B, Machinery Directive, EN 1808.
-
Material:
Spec
Downloads
Product Questions & Answers
Product Questions & Answers
QUESTIONS & ANSWERS
Have a Question?
Be the first to ask a question about this.